Corso Resina 310 - "Villa Durante " - Ercolano - (Na)

P.IVA 08550281219

80056

Italia

logo1

odinipaingegneriasrl@gmail.com

Ex Liceo Oriani

Corato (BA)

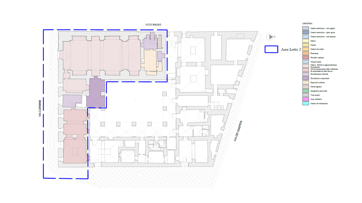
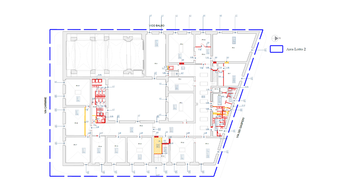
Facciata post-interventoPre-interventoPre-interventoPre-interventoPre-interventoAnalisi del degrado - Sezione BB'Piano Terra - Layout funzionaleRecupero della pavimentazioneRecupero della pavimentazioneInterventi sul campanile - Cuciture armateDettaglio Impianto Elettrico - ChiesaPiano Secondo - Interventi generaliConsolidamento strutturale con fasce di tessuto in fibra di acciaio galvanizzato e geomalta

Progettazione esecutiva per la realizzazione dei lavori "PNRR - Missione 5 componente 2 investimento/subinvestimento 2.1 - Rigenerazione urbana intervento di recupero e rifunzionalizzazione per il miglioramento della qualità del decoro urbano e del tessuto sociale ambientale attraverso sviluppo dei servizi sociali, educativi e culturali - ex liceo Oriani - Corso Garibaldi - Corato"

Stazione appaltante / Committente

Comune di Corato

Importo dell'opera

€ 3.708.070,52

Anno

2024

Prestazioni svolte

Progettazione Esecutiva e CSP

Categorie lavori

E.22 - € 1.793.391,59

S.04 - € 95.070,69

IA.01 - € 112.829,86

IA.02 - € 217.933,44

IA.03 - € 376.423,79

Corso Resina 310 - "Villa Durante " - Ercolano - (Na)

P.IVA 08550281219

80056

Italia

odinipaingegneriasrl@gmail.com